До 16 м3 53 700 рублей
До 20 м3 66 800 рублей
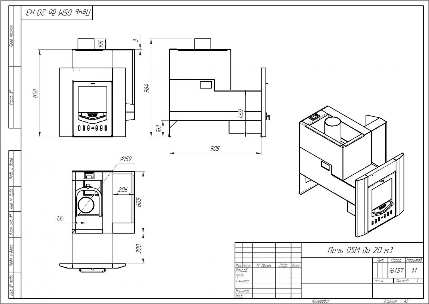
.png)
Конфигурация печи «ТРОЙКА» "05" и "05 МИНИ" оптимизирована под небольшие парные.
Верхняя часть каменки позволяет легко и удобно подавать воду на камни.
Полученный на камнях пар выходит вверх, без риска кого-либо обжечь (актуально для небольших парных).
Объемная, не вентилируемая каменка позволяет получать большое количество пара, толстый металл топки и дымовых каналов обеспечит высокий ресурс печи (более 15 лет).
Подача воды в нижнюю раскаленную зону каменки дает большое количество легкого невидимого пара. Печь предназначена для обкладки кирпичом.
Кирпич – материал, наиболее подходящий для облицовки печей и создания максимально мягкого климата в парной, он дает тепловое излучение близкое нашему телу, как солнечное тепло.
Кирпичная кладка вокруг печи:
обеспечивает максимальное снижение инфракрасного излучения от металла;
позволяет получить климат русской бани и надолго сохранять его; повышает теплоемкость, и за счет огромной тепловой инерции позволяет быстро и полностью просушивать парилку;
гасит все жесткие тепловые излучения от раскаленного металла; выравнивает климат;
увеличивает скорость нагрева бани при правильном монтаже;
гарантирует пожаробезопасность.
Наши печи в кирпичной кладке выглядят красиво и имеют высокую степень надежности.
Особенности печи «ТРОЙКА» "05" и "05 МИНИ":
Металл толщиной 10 мм, способный выдержать большую массу камней, и не деформироваться.
Универсальность монтажа – печь отапливает одновременно три помещения.
Каждый элемент печи находится в своем помещении (топка из предбанника, каменка - в парном, бак - в помывочном отделении).
Отсутствие конвекционного потока в каменке - более горячие камни, и как следствие невидимый легкий пар. Печь укомплектована чугунной топочной дверью.
Подача воды в нижнюю раскаленную зону камней (температура нижней части камней 500°С).
Объемный бак (72 литра с "05" печью и 51 литра с печью "05 МИНИ") из нержавеющей стали, который легко снять, помыть или убрать на зиму.
Печь оснащена задвижкой, которая позволяет топить печь в разных режимах(печь "05 МИНИ" задвижкой не комплектуется).
Большой диаметр дымохода обеспечивает устойчивую тягу при любых погодных условиях и избавляет вас от надобности в его прочистке.
Обороты дымохода, выполненные из цельных листов стали толщиной 10 и 14 мм.
Система оборотов дымохода имеет ревизионный лючок.
Большая передняя панель дает дополнительное тепло в предбанник.
Скошенная задняя часть каменки позволяет удобно поддавать воду на камни.
Объемная топка длиной 900 мм позволяет топить дровами до 870 мм.
Для повышения экономичности и экологичности печи в ней применена технология дожигания пиролизных газов.
С помощью специального воздуховода в печи организована подача нагретого до высокой температуры вторичного воздуха, обеспечивающего сжигание, образующихся в процессе горения дров, пиролизных газов.
Для покупки товара в нашем интернет-магазине выберите понравившийся товар и добавьте его в корзину. Далее перейдите в Корзину и нажмите на «Оформить заказ» или «Быстрый заказ».
Когда оформляете быстрый заказ, напишите ФИО, телефон и e-mail. Вам перезвонит менеджер и уточнит условия заказа. По результатам разговора вам придет подтверждение оформления товара на почту или через СМС. Теперь останется только ждать доставки и радоваться новой покупке.
Оформление заказа в стандартном режиме выглядит следующим образом. Заполняете полностью форму по последовательным этапам: адрес, способ доставки, оплаты, данные о себе. Советуем в комментарии к заказу написать информацию, которая поможет курьеру вас найти. Нажмите кнопку «Оформить заказ».
Оплачивайте покупки удобным способом. В интернет-магазине доступно 3 варианта оплаты:
- Наличные при самовывозе или доставке курьером. Специалист свяжется с вами в день доставки, чтобы уточнить время и заранее подготовить сдачу с любой купюры. Вы подписываете товаросопроводительные документы, вносите денежные средства, получаете товар и чек.
- Безналичный расчет при самовывозе или оформлении в интернет-магазине: карты Visa и MasterCard. Чтобы оплатить покупку, система перенаправит вас на сервер системы ASSIST. Здесь нужно ввести номер карты, срок действия и имя держателя.
- Электронные системы при онлайн-заказе: PayPal, WebMoney и Яндекс.Деньги. Для совершения покупки система перенаправит вас на страницу платежного сервиса. Здесь необходимо заполнить форму по инструкции.
Экономьте время на получении заказа. В интернет-магазине доступно 4 варианта доставки:
- Курьерская доставка работает с 9.00 до 19.00. Когда товар поступит на склад, курьерская служба свяжется для уточнения деталей. Специалист предложит выбрать удобное время доставки и уточнит адрес. Осмотрите упаковку на целостность и соответствие указанной комплектации.
- Самовывоз из магазина. Список торговых точек для выбора появится в корзине. Когда заказ поступит на склад, вам придет уведомление. Для получения заказа обратитесь к сотруднику в кассовой зоне и назовите номер.
- Постамат. Когда заказ поступит на точку, на ваш телефон или e-mail придет уникальный код. Заказ нужно оплатить в терминале постамата. Срок хранения — 3 дня.
- Почтовая доставка через почту России. Когда заказ придет в отделение, на ваш адрес придет извещение о посылке. Перед оплатой вы можете оценить состояние коробки: вес, целостность. Вскрывать коробку самостоятельно вы можете только после оплаты заказа. Один заказ может содержать не больше 10 позиций и его стоимость не должна превышать 100 000 р.
Дополнительная вкладка, для размещения информации о магазине, доставке или любого другого важного контента. Поможет вам ответить на интересующие покупателя вопросы и развеять его сомнения в покупке. Используйте её по своему усмотрению.
Вы можете убрать её или вернуть обратно, изменив одну галочку в настройках компонента. Очень удобно.
